Ugao Koči Ivana i Bulevar Patrijarha Pavla – Stan 45 – Četvorosoban
Ugao Koči Ivana i Bulevar Patrijarha Pavla – Stan 45 – Četvorosoban
Opis
Detalji
Updated on фебруар 1, 2026 at 9:30 pm-
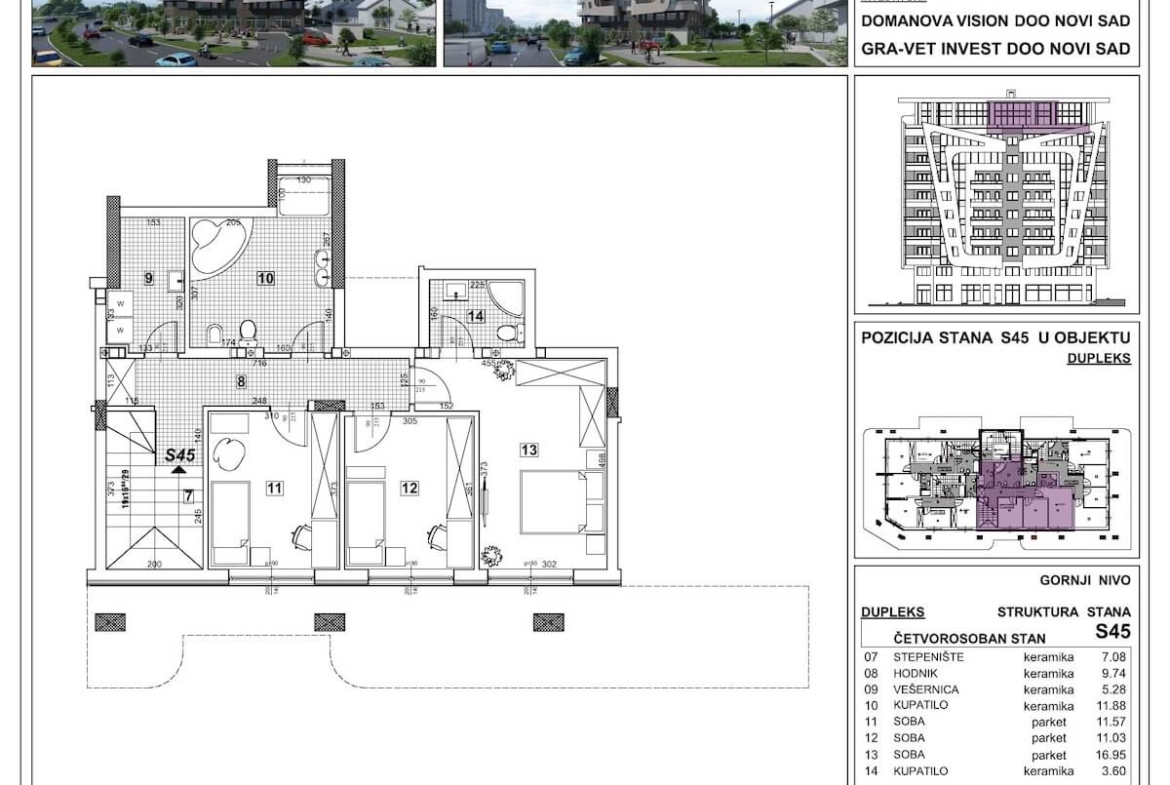
Veličina 161.18 m2
-
Sobnost 4
-
Sobe 3
-
Kupatila 2
-
Godina izgadnje 2026
-
Tip objekta Koci Ivana i Bulevar Patrijarha Pavla
-
Status objekta Na prodaju
Adresa
Pogledati na mapama-
Adresa: Koči Ivana i Bulevar Patrijarha Pavla
-
Grad: Novi Sad
-
Region: Srbija
-
Poštanski kod: 21000
-
Deo grada: Telep
-
Zemlja: Srbija
Sadržaji u blizini
Slični objekti
Kontakt informacije
Pogledati stanove- Gra-Vet Invest

