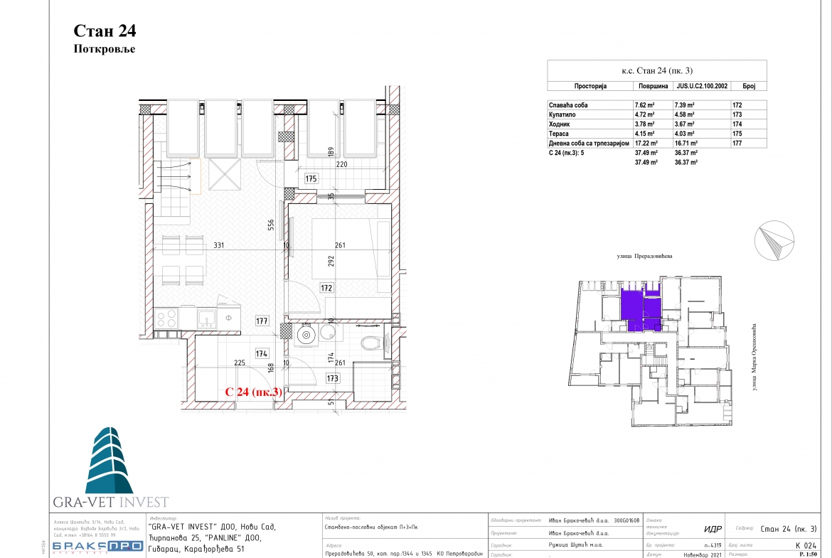
Preradovićeva 50 – stan 24 – Dvosoban
Opis
Detalji
Updated on June 6, 2022 at 9:34 am-
Veličina 37m2 m2
-
Sobnost 2
-
Kupatilo 1
-
Godina izgadnje decembar 2021
-
Tip objekta Preradovićeva 50
-
Status objekta Prodato
Adresa
Pogledati na mapama-
Adresa: Preradoviceva 50
-
Grad: Novi Sad
-
Region: Srbija
-
Poštanski kod: 21000
-
Deo grada: Petrovaradin
-
Zemlja: Srbija
Sadržaji u blizini
Sprat
Potkrovlje
- 2
- 1
Description:
Slični objekti
Kontakt informacije
Pogledati stanove- Gra-Vet Invest
