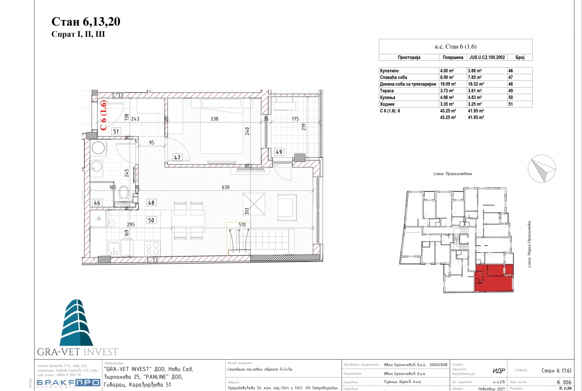
Preradovićeva 50 – stan 6 – Dvosoban
Opis
Detalji
Updated on октобар 21, 2022 at 11:42 am-
Veličina 43 m2
-
Sobnost 2
-
Kupatilo 1
-
Godina izgadnje decembar 2021
-
Tip objekta Preradovićeva 50
-
Status objekta Prodato
Adresa
Pogledati na mapama-
Adresa: Preradovićeva 50
-
Grad: Novi Sad
-
Region: Srbija
-
Poštanski kod: 21000
-
Deo grada: Petrovaradin
-
Zemlja: Srbija
Sadržaji u blizini
Sprat
Prvi
- 2
- 1
Description:
Slični objekti
Kontakt informacije
Pogledati stanove- Gra-Vet Invest
