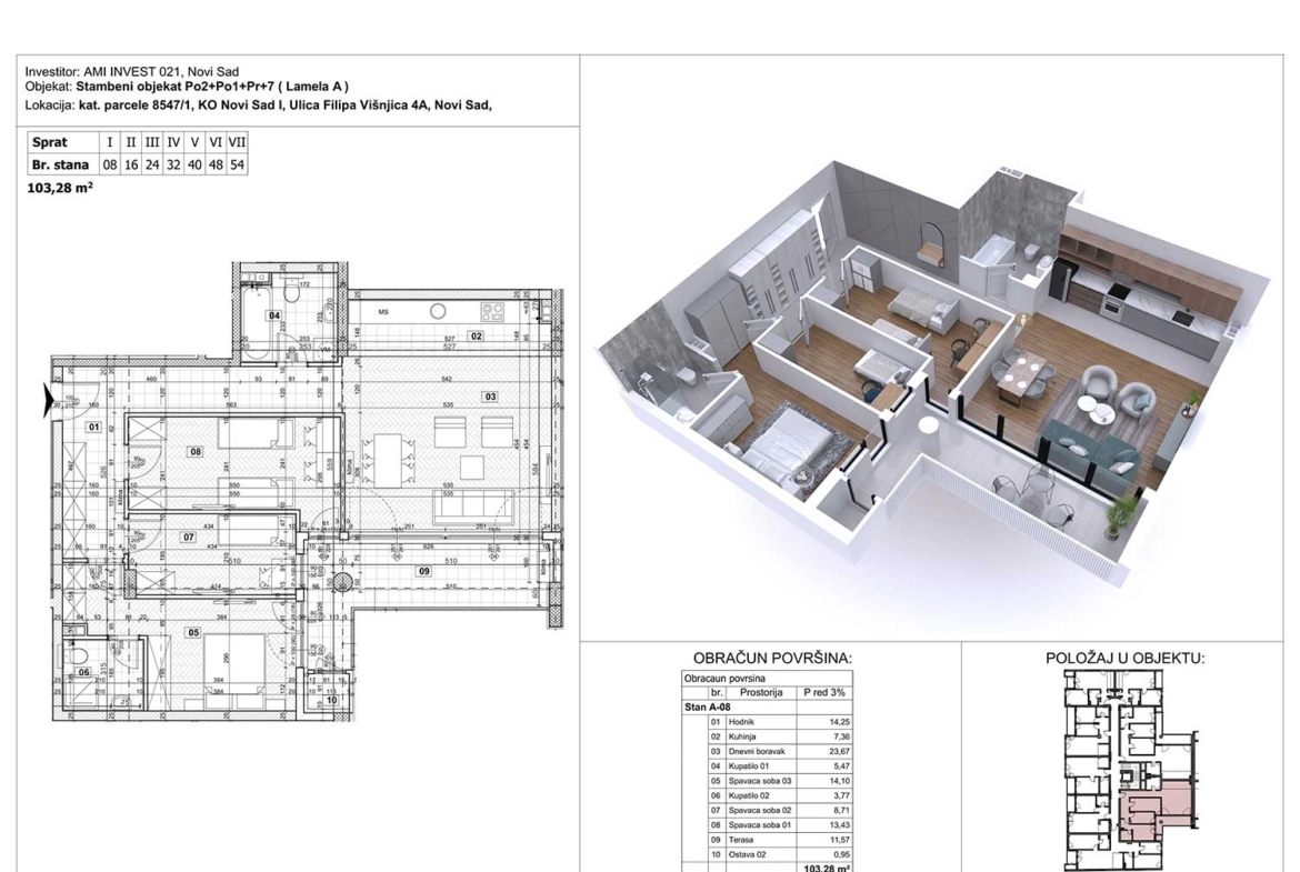
FILIPA VIŠNJIĆA 4 – Stan 24 – Četvorosoban – Lamela A
FILIPA VIŠNJIĆA 4 – Stan 24 – Četvorosoban – Lamela A
Opis
Detalji
Updated on March 19, 2026 at 10:55 am-
Veličina 104.55 m2
-
Sobnost 4
-
Kupatila 3
-
Godina izgadnje septembar 2024.
-
Tip objekta Filipa Višnjica 4 i 4a – Lamela A
-
Status objekta Na prodaju
Adresa
Pogledati na mapama-
Adresa: Filipa Višnjića 4
-
Grad: Novi Sad
-
Region: Srbija
-
Poštanski kod: 21000
-
Deo grada: Podbara
-
Zemlja: Srbija
Sadržaji u blizini
Slični objekti
Kontakt informacije
Pogledati stanove- Gra-Vet Invest
